|
Pfleghof in Langenau Neubau eines barrierefreien Zugangs
Bauherr : Stadt Langenau
|
|
![]() |
|
| Eröffnung Stand 24.Oktober 2014 (Blick von Süd- Osten) |
|
| Langenau Aktuell vom 30.10.2014 |
|
![]() |
|
| Baustellenfoto Stand 09.September 2014 (Blick von Süd- Osten) |
|
![]() |
|
| Baustellenfoto Stand 09.September 2014 (Blick von Süden) |
|
![]() |
|
| Baustellenfoto Stand 15.August 2014 (Blick von Süd- Osten) |
|
![]() |
|
| Baustellenfoto Stand 15.August 2014 (Blick von Süden) |
|
![]() |
|
| Baustellenfoto Stand 15.August 2014 (Zugang Pfleghofsaal im 1. OG) |
|
![]() |
|
| Baustellenfoto Stand 15.August 2014 (Ausgang Pfleghofsaal im 1. OG) |
|
![]() |
|
| Baustellenfoto Stand 15.August 2014 (Ausgang Pfleghofsaal im 1. OG) |
|
![]() |
|
| Baustellenfoto Stand 05.August 2014 (Südfassade) |
|
![]() |
|
| Baustellenfoto Stand 05.August 2014 (Nordfassade) |
|
![]() |
|
| Baustellenfoto Stand 31.Juli 2014 (Aufrichten des Aufzugsgerüstes) |
|
![]() |
|
| Baustellenfoto Stand 31.Juli 2014 (Anschluss an den Altbau) |
|
![]() |
|
| Baustellenfoto Stand 29.Juli 2014 (Aufrichten des Aufzuggerüstes) |
|
![]() |
|
| Baustellenfoto Stand 29.Juli 2014 (Durchgang im EG) |
|
![]() |
|
| Baustellenfoto Stand 24.Juli 2014 (Nordfassade) |
|
![]() |
|
| Baustellenfoto Stand 24.Juli 2014 (Fassadenausschnitt Nordfassade) |
|
![]() |
|
| Baustellenfoto Stand 24.Juli 2014 (Anschluss an den Altbau) |
|
![]() |
|
| Baustellenfoto Stand 24.Juli 2014 (Anschluss an den Altbau) |
|
![]() |
|
| Baustellenfoto Stand 24.Juli 2014 (Durchgang im EG) |
|
![]() |
|
| Baustellenfoto Stand 24.Juli 2014 (Montage Radiavektoren im EG) |
|
| Baustellenfoto Stand 06.Mai 2014 (Blick von Süd- Osten) |
|
| Baustellenfoto Stand 06.Mai 2014 (Blick von Nord-Osten) |
|
| Baustellenfoto Stand 06.Mai 2014 (Durchbruch) |
|
![]() |
|
| Baustellenfoto Stand 29.April 2014 (Blick von Süden) |
|
![]() |
|
| Baustellenfoto Stand 29.April 2014 (Blick von Süd- Osten) |
|
![]() |
|
| Baustellenfoto Stand 29.April 2014 (Blick von Nord- Osten) |
|
![]() |
|
| Baustellenfoto Stand 22.April 2014 (Blick von Süd- Osten) |
|
![]() |
|
| Baustellenfoto Stand 22.April 2014 |
|
![]() |
|
|
Baustellenfoto Stand 15.April 2014 (Blick von Süd- Osten) |
|
![]() |
|
|
Baustellenfoto Stand 08.April 2014 (Blick von Norden) |
|
![]() |
|
| Baustellenfoto Stand 01.April 2014 (Blick von Osten) |
|
![]() |
|
| Baustellenfoto Stand 28.März 2014 (Blick von Osten) |
|
![]() |
|
| Baustellenfoto Stand 25.März 2014 (Blick von Osten) |
|
![]() |
|
| Querschnitt Steg |
|
![]() |
|
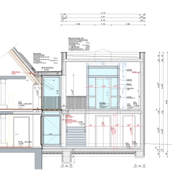
| Querschnitt |
|
![]() |
|
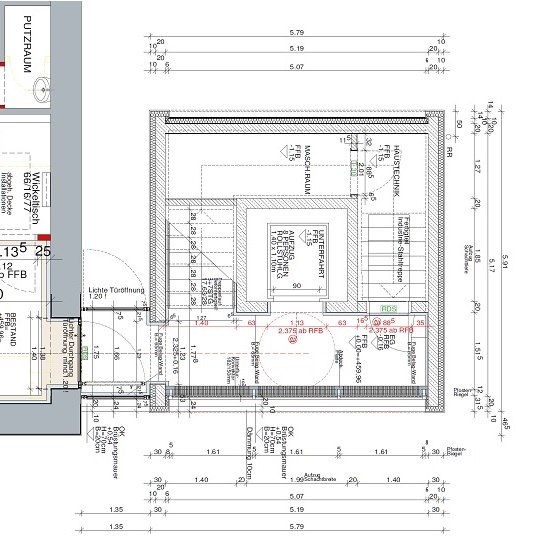
| Erdgeschoss |
|
![]() |
|
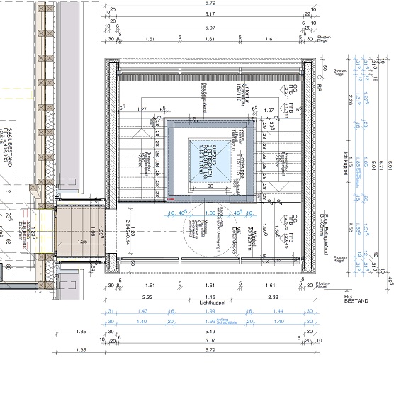
| Obergeschoss |
|